Le bâtiment existant servait de pressoir au début du XX siècle, il était relativement dégradé. La toiture en tuile plate, envahie par la mousse et les lichens, n’assurait plus la protection des murs extérieurs en pierre contre les intempéries. L’enduit de façade était dégradé et des fissures importantes s’étaient formées côté intérieur.
Objectifs :
- Restaurer le bâtiment existant fortement endommagé.
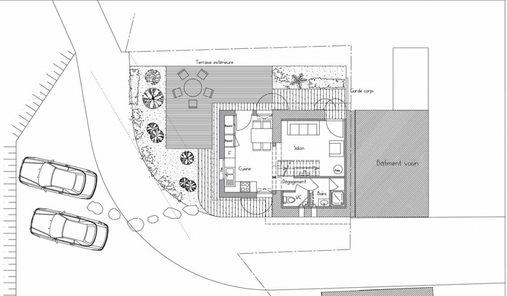
- Aménager un logement fonctionnel dans une surface habitable réduite :
- 28m2 habitable pour l’existant (salon et pièces d’eau au rez-de-chaussée, deux chambres à l’étage)
- 12m2 habitable pour l’extension (entrée-cuisine).
Principes de rénovation :
- Réfection complète de la toiture : remplacement de la couverture en tuiles plates et reprise de la charpente en bois.
- Mise en place de gouttières et de descentes pour la récupération des eaux pluviales.
- Drainage en pied de façades des murs extérieurs.
- Reprise des enduits intérieurs et extérieurs pour réparer les fissures et améliorer l’étanchéité à l’air des parois.
- Utiliser les ouvertures existantes en les modifiant le moins possible de manière à ne pas déstabiliser la structure existante.
- Regrouper dans l’extension l’entrée et la cuisine pour optimiser les surfaces.
- Utiliser l’escalier comme séparation spatiale entre les espaces de vie et les pièces d’eau (sanitaires, douche).




